155 Cimarron Grove CircleOkotoks, AB T1S 2M1




Mortgage Calculator
Monthly Payment (Est.)
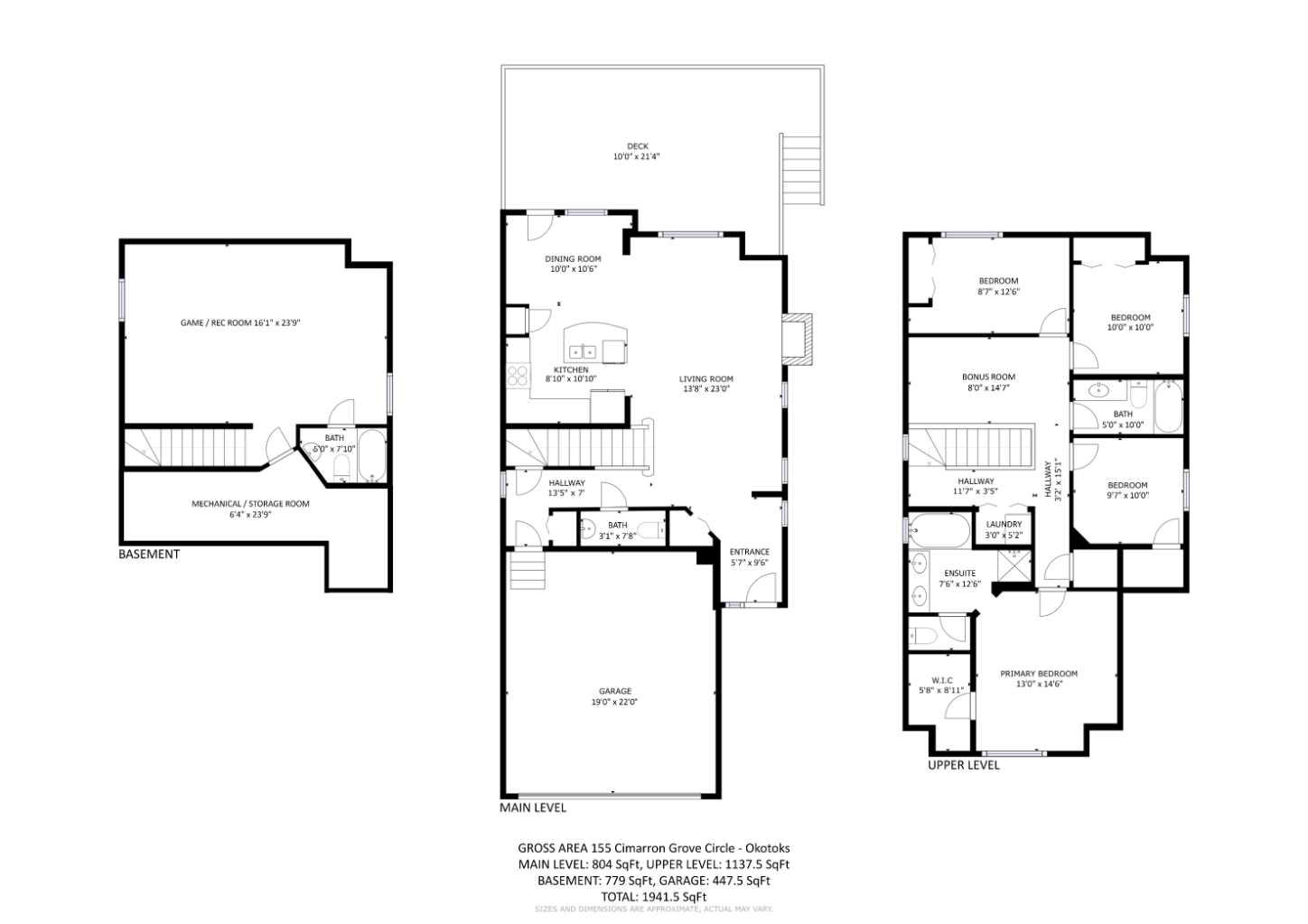
$3,125Welcome to 155 Cimarron Grove Circle, tucked away on a quiet street in the popular community of Cimarron. This well-designed 4-bedroom, 4-bathroom home offers the perfect blend of style and functionality. With real hardwood flooring, comfy carpet, and tiled bathrooms, this family home is sure to impress. The main floor features a bright, open-concept layout. The kitchen showcases maple cabinetry, Stainless steel appliances and a natural slate backsplash, flowing seamlessly into the inviting living room, complete with a cozy gas fireplace. A convenient 2-piece bathroom finishes off this level. Upstairs, the spacious primary bedroom includes a generously sized ensuite, creating a private retreat. Upper-floor laundry adds great convenience. 3 additional bedrooms, a bonus room/loft, and a 4-piece main bath complete the second level! The fully finished lower level offers even more living space with a large family room and another 4-piece bathroom. The heated double garage ensures year-round comfort. Outside, enjoy the sun on the large deck overlooking the ample pie-shaped yard—perfect for kids, gardening, or a future firepit area. With back-lane access, there’s room to store extra toys if needed. This beautifully designed home also features central air conditioning, offering everything you need in a fantastic location.
| yesterday | Listing first seen on site | |
| 2 days ago | Listing updated with changes from the MLS® |
Listing information is provided by Participants of the Alberta One Realty Listing Services (Pillar 9). IDX information is provided exclusively for personal, non-commercial use, and may not be used for any purpose other than to identify prospective properties consumers may be interested in purchasing. Information is deemed reliable but not guaranteed. Copyright 2025, Alberta One Realty Listing Services (Pillar 9)
Last checked 2025-12-08 07:05 PM UTC
Did you know? You can invite friends and family to your search. They can join your search, rate and discuss listings with you.